一般家庭在装修的时候可能需要拆墙,那么什么样的墙才能被拆除呢?这是一个值得我们关注的问题。下面我就简单的介绍一下如何去判断墙体是否能够被拆除。
首先,我先介绍两个名词承重墙和非承重墙。承重墙指支撑着上部楼层重量的墙体,在工程图上为黑色墙体,打掉会破坏整个建筑结构;非承重墙是指不支撑着上部楼层重量的墙体,只起到把一个房间和另一个房间隔开的作用,在工程图上为中空墙体,有没有这堵墙对建筑结构没什么大的影响。墙体是否能够被拆除关键就在于它是否是承重墙,承重墙一般不能被拆除的。
大体地讲,砖混结构的房屋所有墙体都是承重墙;框架结构的房屋内部的墙体一般都不是承重墙。当然具体到房屋结构本身,判断墙是否是承重墙,应仔细研究原建筑图纸并到现场实际勘察后才能确定。个人装修时可以结合以下几点简单地区分承重墙和非承重墙:
1、从房屋结构上区分:
一般地讲,砖混结构的房屋所有墙体都是承重墙;框架结构的房屋内部的墙体一般都不是承重墙。
2、从墙砖的材质上区分:一般标准砖的墙是承重墙,加气砖的是非承重墙。

3、从墙的厚度分:150mm厚的隔墙是非承重墙,(其实150mm的墙再减去内外抹灰,墙的实际尺寸最多120mm),如卫生间,厨房出现较多。
4、根据梁与墙的结合处区分:一般墙与梁间紧密结合的是承重墙;采用的斜排砖的方法的是非承重墙。
5、通过声音判断:用手去敲击墙体,如果很响(像敲鼓一样),则是普通的砖墙,而承重墙应该没什么太多的声音。
6、若是剪力墙结构的话,规范规定剪力墙最小厚度不应小于160mm(这还是指非抗震设计的剪力墙),一般剪力墙的厚度在200mm。有条件的话,从开放商那里拿到房屋的图纸,一般在图纸上会标注出来的。


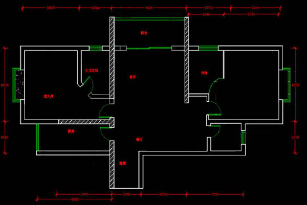
图中黑色的部分就为承重墙。下面在给大家看一张cad施工图(图中阴影部分即为承重墙)

通过上面的浅谈,希望对大家了解家装拆墙知识有所帮助。
安徽新华电脑学校专业职业规划师为你提供更多帮助【在线咨询】

热门精品专业

